尋一處清幽雅致之地
覓一方滌蕩心靈之處
享受美食、品味茶香
陶冶情趣、怡然自得

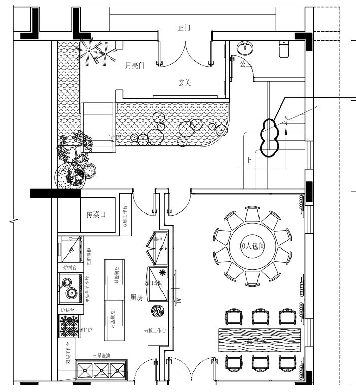
△一層平面圖

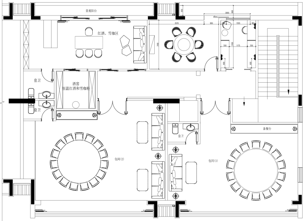
△二層平面圖
→項目名稱:獵人坊會所
→項目地址:中國·廣東·廣州
→項目面積:220+㎡
→完成時間:2023年06月
→布局解析:
? 多功能空間布局設計,如包間區、茶室區、廚房區和酒窖等。
? 一二樓設置可容納14人超大包間,增強社交互動性。
? 特意設計小型包間、茶室,私密、雅舍、尊享會客。




鬧市一隅,偶見私享會所
庭院深深,獨具雅韻格調
線條交轉、光影流淌、虛實變換
都是極美的享受
新中式的收放自如與雅致之道
銜接著過往、當下與將來




大型包間造型端莊
敦厚而富于質感的木色
恰到好處的氛圍布置
處處滲透著深厚的中式文化底蘊
親朋好友齊聚落座于此
感受滿滿的時光煙火氣


接待區匠心獨運
將傳統的美與現代生活方式相融合
在有限空間里創造多重享受
簡樸大氣、舒適感和暢聊欲油然而生



二樓包間通過藏與露、開與合的設計手法
營造莊重優雅、品味悠然的空間意境
金樽清酒斗十千,玉盤珍羞值萬錢
品幾道美食,喝幾杯小酒
把酒言歡,言笑晏晏


一方茶室,幾抹書香
一縷禪意,幾處閑情
在烹茶品茗中感受文化韻味
懷悠然心氣,行風雅之事



一杯一盞,一桌一椅
一花一石,一香一色
承載著歲月的流轉、時光的刻痕
空間美感與東方底蘊美彼此相通
在這里,品茗、焚香、弄墨
盡顯溫雅風韻,感受歲月靜好



私享包間沿用高雅、精致風格
簡單卻不單調的圓桌座位組合
增強社交溝通交流
私密、雅舍、尊享會客
悠然自得,寧靜致遠
【END】
在現代簡約時尚風行的今天,
新中式賦予的禪意與韻調,
讓生活如此靜美,悠然,甚好。
上一篇:卡芬達家居丨復式美家,輕奢有范
下一篇:卡芬達家居丨以文化融入家居,升騰人生之境